525 000 €
Moradia Isolada V4 em Construção - Fernão Ferro - 140 m2
Redondos, Fernão Ferro, Seixal, Setúbal
- Tipologia
- T4
- Zona
- 106 m²
- Preço por metro quadrado
- 4953 €/m²
Ver descrição do anúncio
Ver descrição do anúncio
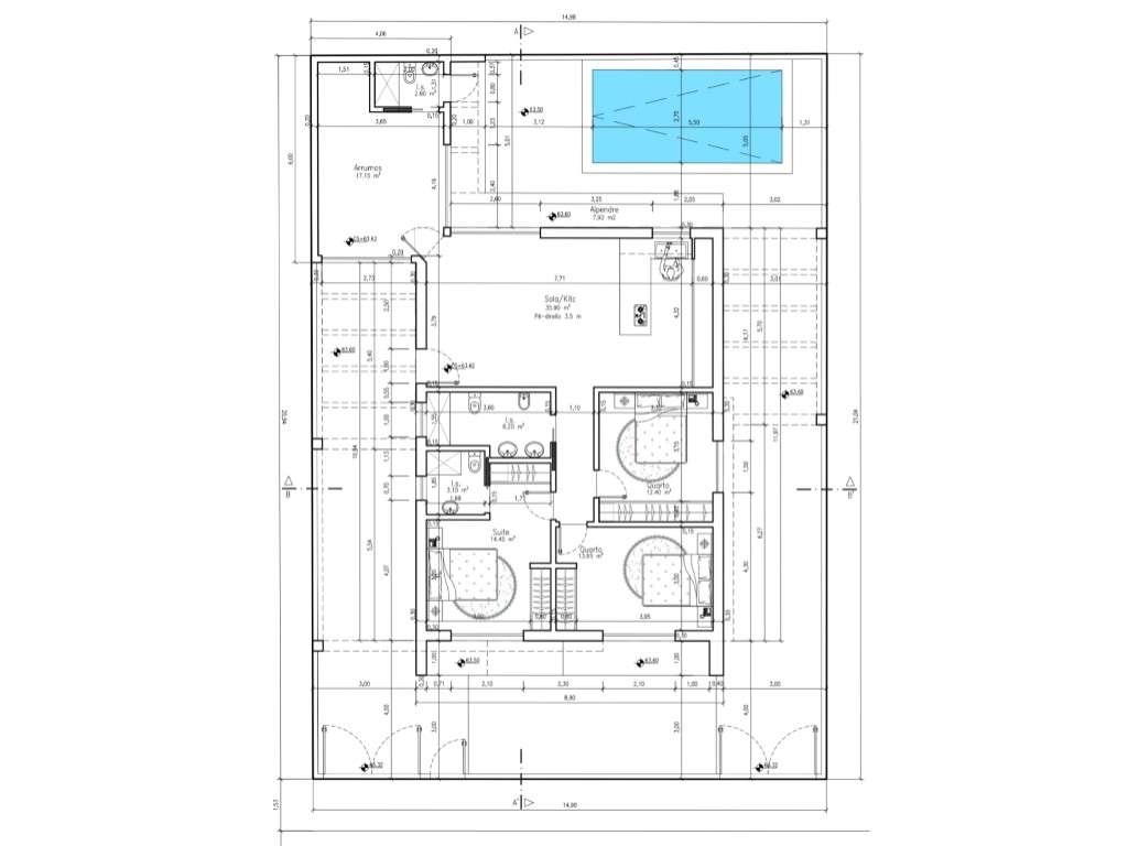
Moradia V4 em Construção Fernão Ferro,
Área do lote 310,00 m2;
Área de construção 140,00 m2;
Volume da piscina 24,60 m3;
Área bruta privativa 106,60 m2;
Sala / Kitc 35,90 m2;
Quartos 17,15 m2, ...
