Loja ampla em Centro Comercial Palmeiras
Largo das Palmeiras, Moita, Moita, Setúbal
- Zona
- 34 m²
- Preço por metro quadrado
- 1294 €/m²
Morada da sede: Campo de Ourique, Av. Eng.º Duarte Pacheco, Torre 2 - 2.º Andar, Sala 4, Compl

Número de results: 6
Ordernar por
Loja ampla em Centro Comercial Palmeiras
Largo das Palmeiras, Moita, Moita, Setúbal
Moradia duplex na Graça com 5 Quartos e Jardim
Rua Senhora do Monte, Graça, São Vicente, Lisboa, Lisboa
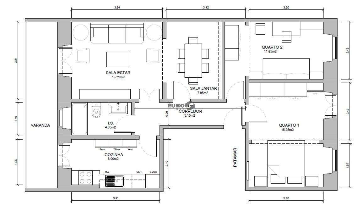
Excelente T2 para venda ao pé de Sete Rios
Rua Filipe da Mata, Entrecampos, Avenidas Novas, Lisboa, Lisboa
Loja rua das flores muito bem localizada
Chiado, Santa Maria Maior, Lisboa, Lisboa
Excelente oportunidade para construção de 1 ou 2 moradias total 880...
Rua da Eira, Bicesse, Alcabideche, Cascais, Lisboa
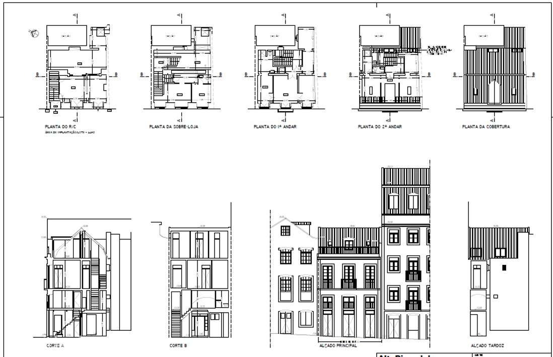
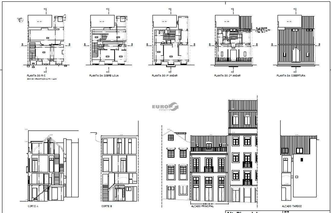
Prédio Habitacional, para venda, Lisboa - Misericórdia
Rua do Poço dos Negros, Conde Barão, Misericórdia, Lisboa, Lisboa