1 950 000 €
Moradia independente à venda no Estreito da Calheta, Caminho dos Reis
Caminho Reis, Estreito da Calheta, Calheta, Ilha da Madeira
- Tipologia
- T3
- Zona
- 242.5 m²
- Preço por metro quadrado
- 8041 €/m²
Ver descrição do anúncio
Ver descrição do anúncio
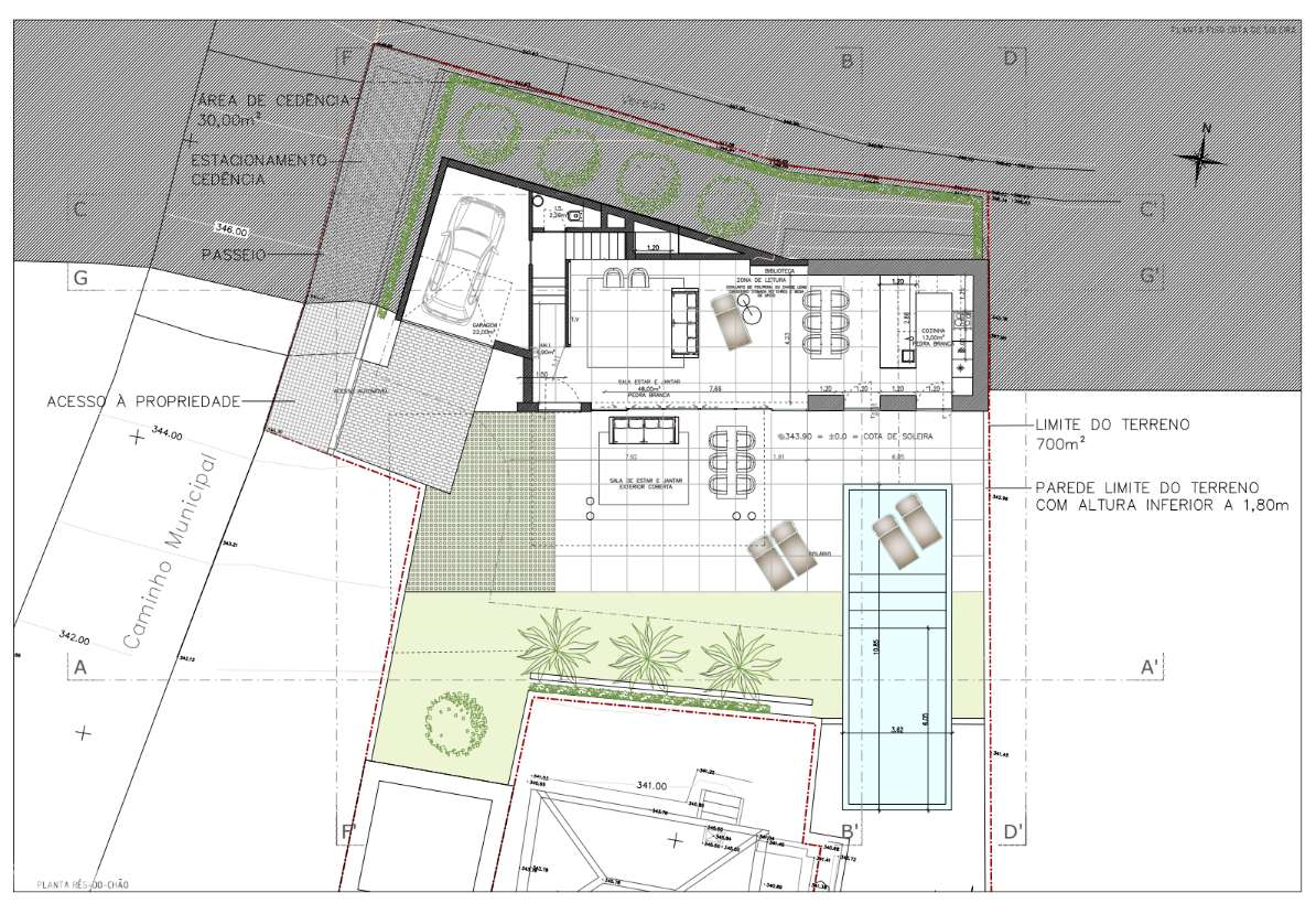
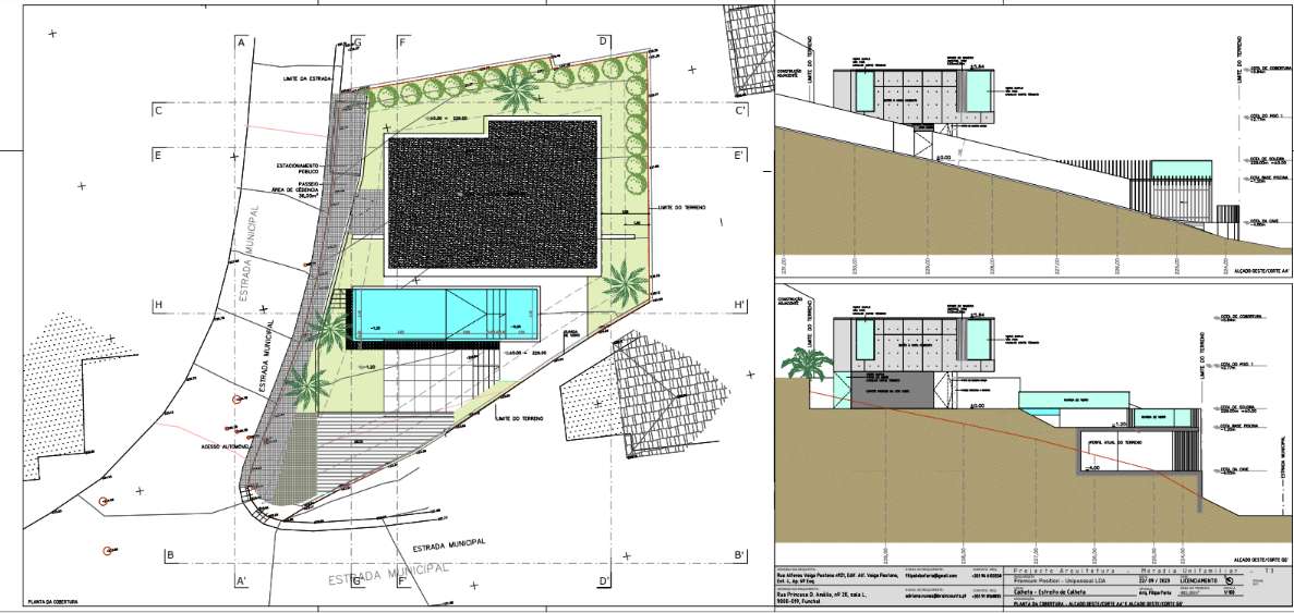
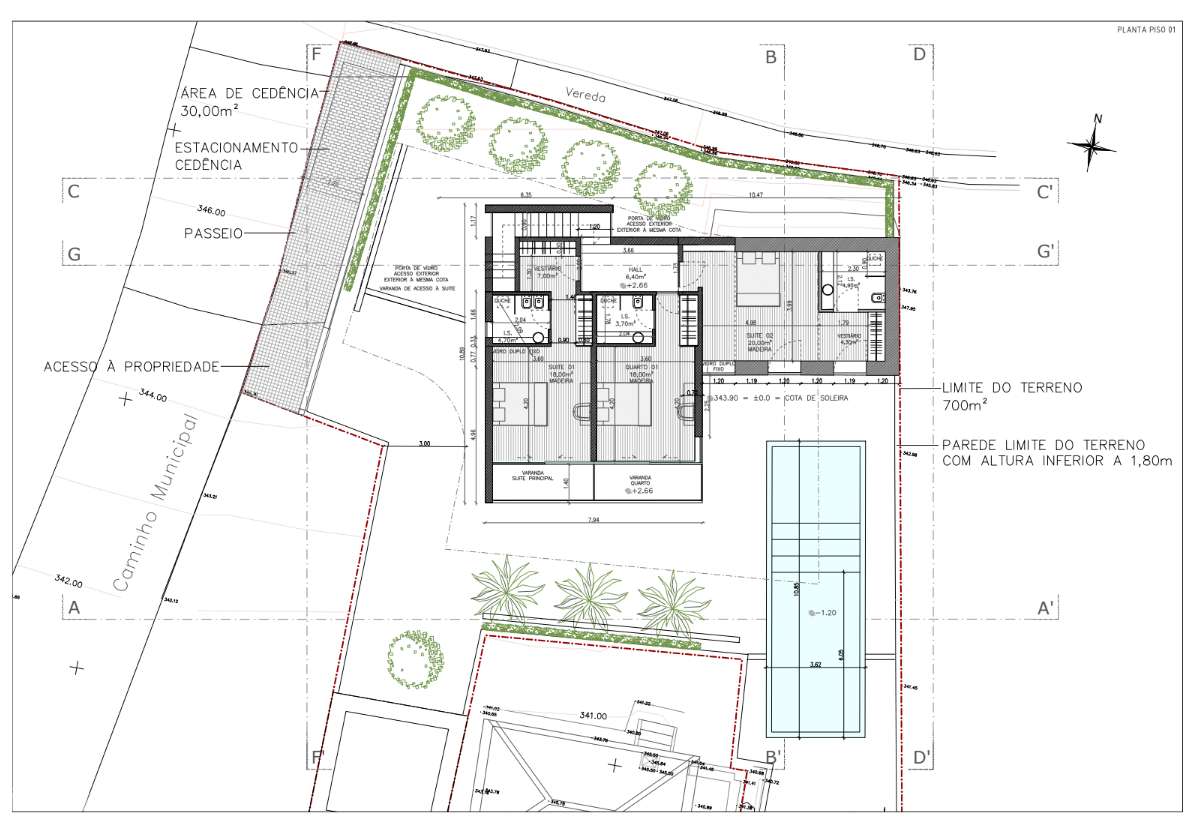
Estreito da Calheta — Moradia T3 (obra em curso, fase avançada)Vista mar, ótima exposição solar, 242,5 m² (área bruta), piscina, exteriores amplos (roof terrace opcional) e garagem. Fase avançada; cro...
