1 / 32
290 000 €1581 €/m²
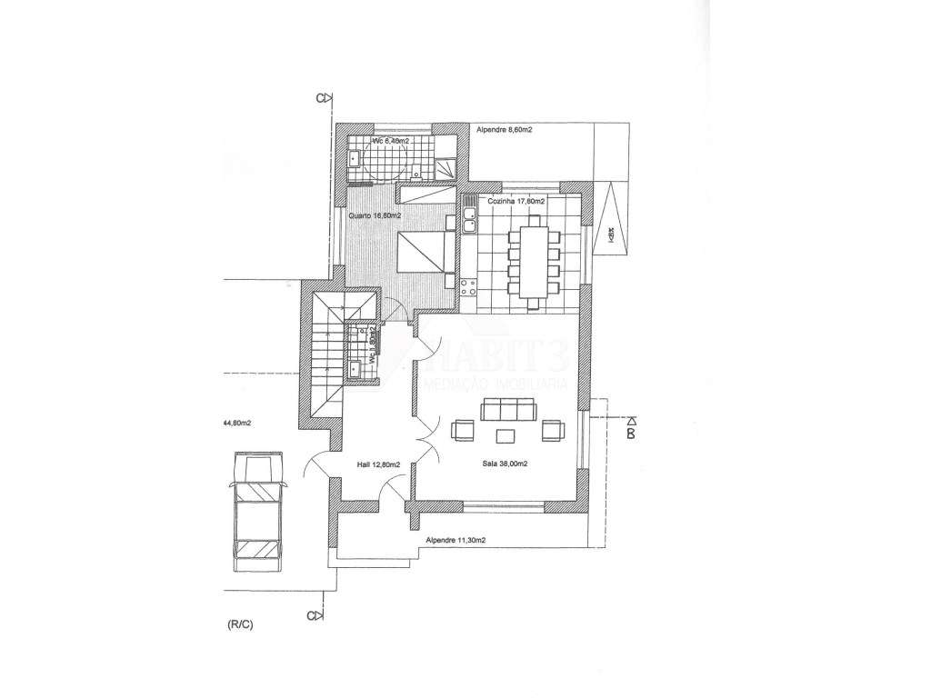
Moradia T3 em Gandra, Ponte de Lima
Gandra, Ponte de Lima, Viana do Castelo
- Tipologia
- T3
- Preço por metro quadrado
- 183.4 m²
Ver descrição do anúncio
Ver descrição do anúncio
Moradia composta por três pisos, localizada em Gandra, a poucos metros do Terreiro de São Martinho. O imóvel encontra-se pronto a habitar e inclui um piso térreo com afetação comercial, oferecendo ver...
Teresa Cristino ImobiliáriaProfissional
