Apartamento T3 nas Paivas - Amora, junto ao Parque Urbano
Paivas, Amora, Seixal, Setúbal
- Tipologia
- T3
- Zona
- 90 m²
- Preço por metro quadrado
- 3544 €/m²
- Andar
- 2 andar
Morada da sede: São Domingos de Benfica, Rua Professor Reinaldo dos Santos, 14 A

Número de results: 300
Ordernar por
Apartamento T3 nas Paivas - Amora, junto ao Parque Urbano
Paivas, Amora, Seixal, Setúbal
Terreno com projecto aprovado, no Cidral, em Rio Maior
2040-069, Rio Maior, Rio Maior, Santarém
T2 NA RUA DA PALMA - Charme e Qualidade no coração da Cidade.
Rua da Palma, Rossio - Martim Moniz, Santa Maria Maior, Lisboa, Lisboa
Terreno com Projeto Licenciado para Empreendimento de Habitação e Comé
Rua Júlio Bruno da Costa Pereira, Sacavém, Sacavém e Prior Velho, Loures, Lisboa
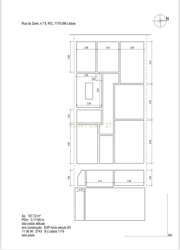
T3 (5 ass.) com terraço, elevador e arrecadação - Rua do Zaire
Rua da Guiné, Anjos, Arroios, Lisboa, Lisboa
T3 Forte da Casa - Alverca
Rua Soda Póvoa - Bairro Soda Póvoa, Forte da Casa, Póvoa de Santa Iria e Forte da Casa, Vila Franca de Xira, Lisboa